

A thoughtful one-bedroom retreat.
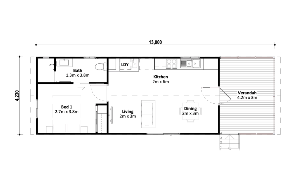
Discover the comfort of living close to family with the Berkshire, a purpose-designed one-bedroom home suited to being a secondary dwelling, balancing practicality with charm.
Step inside from the spacious verandah to an open-plan living, dining and kitchen area, perfect for relaxed everyday living.
A window above the kitchen sink brings a refreshing connection to the outdoors, while the integrated laundry adds everyday convenience.
The generous bedroom comfortably suits a Queen bed, and includes robe storage and a private ensuite featuring a walk-in shower for easy access and effortless cleaning.
Whether for parents wishing to stay close, young adults stepping out on their own, visiting guests or a weekend retreat – The Berkshire is designed to make living simple and connected.
Built and delivered with care and experience, ensuring craftsmanship that stands the test of time.
Contact us for more information or to discuss your requirements.
[gravityform id=”5″]
[gravityform id=”4″]
[gravityform id=”3″]
[gravityform id=”2″]
[gravityform id=”1″]