Angophora Accessible

Specifications

Description

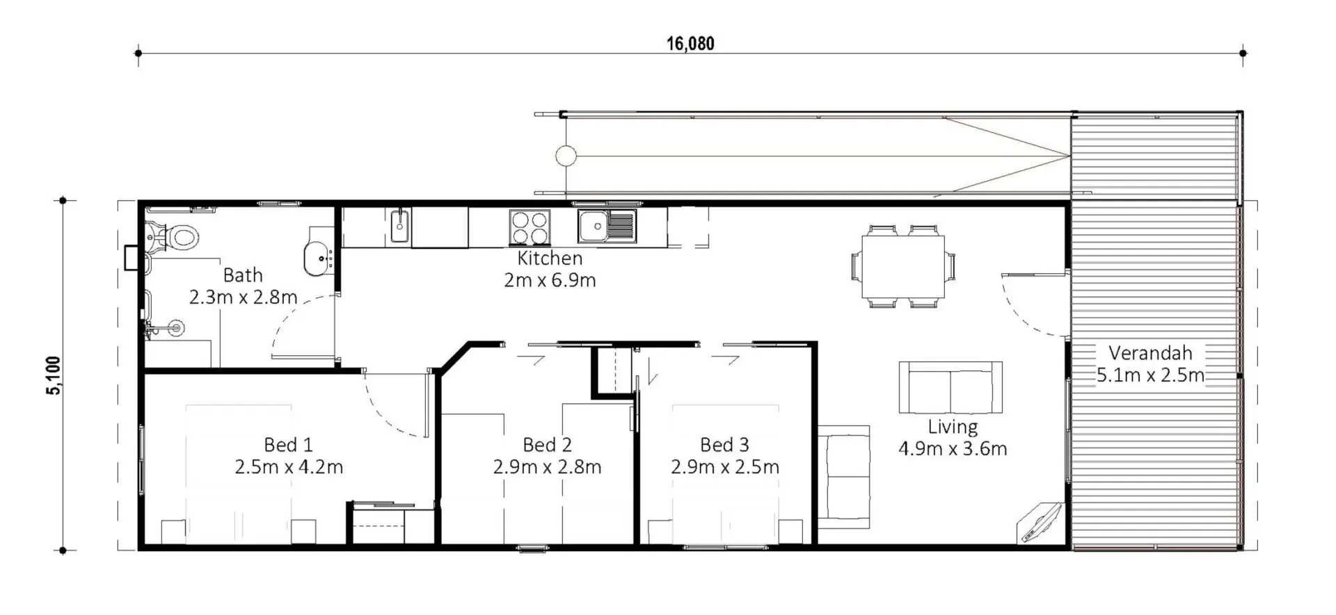
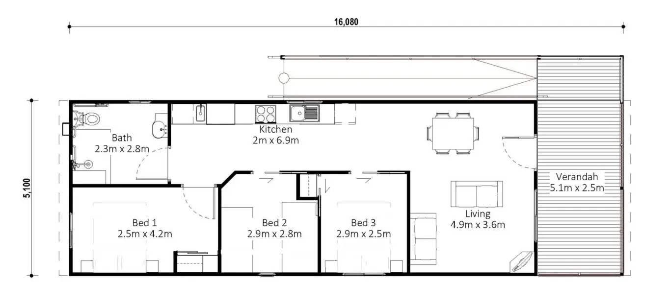
Add flexible, accessibility-focused accommodation with Angophora Accessible – a space-efficient three-bedroom modular cabin featuring an easy-flow layout and practical features.

Access-First Layout – Open circulation designed to AS1428.1 standards, supporting safe and comfortable daily movement.
Three Bedrooms – Well-suited to families, carers, or multi-generational stays
Flexible Capacity – Standard layout accommodates six, with the option to configure Bedroom 2 for bunk beds to increase capacity to eight.
Space-Efficient Flow – The kitchen and integrated laundry is positioned along the hallway to maximise space and maintain easy guest movement.
Space-Saving Doors – Cavity sliding doors to Bedrooms 2 and 3 maximise usable floor space.
Customisable Finishes – Choose interior and exterior options to match your site’s style.
Flexible Modifications – We can tailor the plan and inclusions to suit your specific requirements.
Hassle-Free Delivery – Our expert consultants manage council approvals and full installation, inclusive of a complying access ramp.
Built to Last – High-quality construction with low maintenance, compliant with Queensland building regulations.

Create welcoming, accessible accommodation that’s easy to operate and ready to perform for years.

Images are for illustrative purposes only and may show optional upgrades.

Contact us for more information or to discuss your requirements.

Make it yours

Choose your facade

Speak with a design consultant on the best facade for your floor plan.

Pricing Guides & Inclusions

Get your information packs