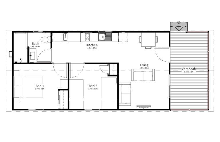
Add flexible, family-friendly accommodation with Angophora – a two-bedroom modular cabin featuring an open-plan living zone for easy everyday comfort.
Two Spacious Bedrooms – Private rooms ideal for couples or families, with Bedroom 2 adaptable for singles, bunks, or a queen bed to sleep up to six guests in total.
Extra Width for Comfort – Wider design gives guests a more spacious kitchen and living experience, while still maintaining an efficient road frontage that helps parks maximise road space.
Functional Living – Lounge, dining, and kitchen areas flow seamlessly to maximise usable space.
Well-Appointed Bathroom – Full bathroom with walk-in shower for guest comfort and easy maintenance.
Guest Convenience – Main bedroom includes a robe and luggage rack to make settling in simple.
Customisable Finishes – Choose interior and exterior options to match your park’s style.
Flexible Modifications – the Angophora is easily adapted suit your site style and guest needs.
Hassle-Free Delivery – Our experts manage council approvals and full installation
Built to Last – Quality construction, low-maintenance materials, and compliance with Queensland building regulations.
Create dependable, stylish accommodation that’s ready to perform for years.
Images are for illustrative purposes only and may show optional upgrades.
Contact us for more information or to discuss your requirements.




