Cheshire

Specifications

Description

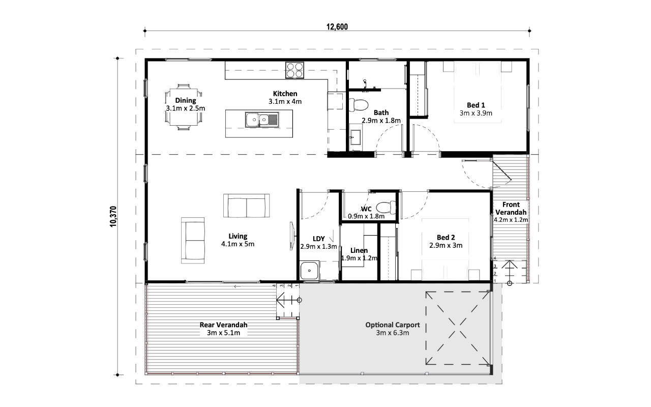
Cathedral-ceiling hallway, rear verandah, carport-ready

Enter via a front porch into a cathedral-ceiling hallway with a bedroom each side.

The central bathroom and separate toilet streamline busy mornings, with a laundry that includes a generous walk-in linen.

The kitchen balances abundant bench space and storage with a full-height double pantry and oven/microwave tower, plus a breakfast bar for casual dining.

Large sliding doors open the living to a rear verandah for effortless entertaining.

Add the optional carport to create covered access from car to kitchen.

Images are for illustrative purposes only and may show optional upgrades.

Contact us for more information or to discuss your requirements.

Make it yours

Choose your facade

Speak with a design consultant on the best facade for your floor plan.

Pricing Guides & Inclusions

Get your information packs