$364,953.00 incl. GST

Cornwall

Specifications

Description

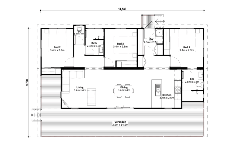
Entertainer’s verandah with living facing the outdoors

Cornwall orients living, kitchen and dining toward an expansive verandah – perfect for entertaining and making the most of rural outlooks.

The kitchen keeps benches clear with an under-bench oven and a double-door pantry.

All three bedrooms take queen beds; the master enjoys an ensuite with walk-in shower and separation from Bedrooms 2 and 3 with access via a separate hallway.

A separate toilet complements the main bathroom, for convenience.

Laundry includes two storage cupboards plus a rear landing; extra hallway storage keeps everything in place.

Sliding doors open dining to the long verandah and a built-in BBQ alcove.

Images are for illustrative purposes only and may show optional upgrades.

Contact us for more information or to discuss your requirements.

Make it yours

Choose your facade

Speak with a design consultant on the best facade for your floor plan.

Pricing Guides & Inclusions

Get your information packs