Cotswold

Specifications

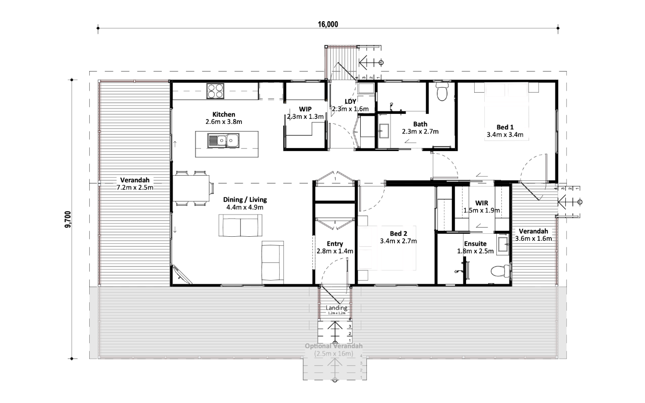
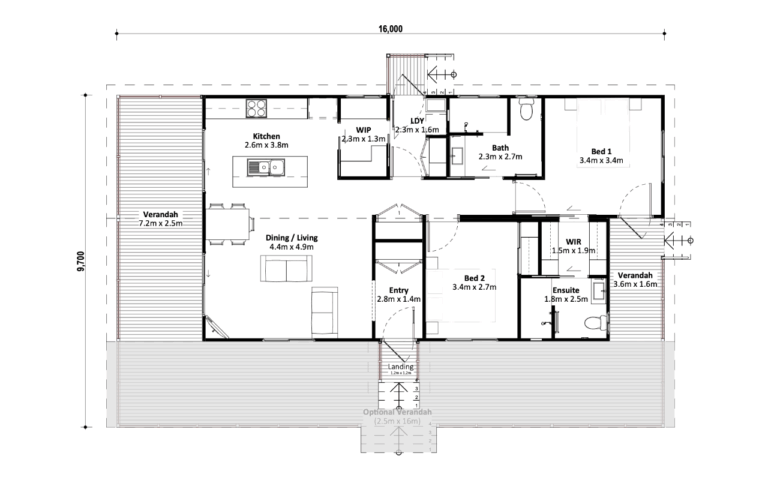
Description

Wrap-around verandah potential, practical everyday living and easy entertaining

Cotswold shines on rural or homestead sites, especially with its wrap-around verandahs.

Inside, a dedicated entry with storage brings a warm welcome and convenience.  Further storage is provided in the hallway and laundry.

The kitchen features an island with breakfast bar and a well-lit walk-in pantry that connects directly to the laundry – great for connecting high-traffic areas.

Everyday functionality is well considered with additional pantry bench space and an under-bench oven to maximises kitchen workspace.

Two bathrooms each include walk-in showers; the master adds a walk-in robe and private verandah access for quiet mornings.

Two sliding glass doors open living and dining to the verandah for all-season entertaining.

Images are for illustrative purposes only and may show optional upgrades.

Contact us for more information or to discuss your requirements.

Make it yours

Choose your facade

Speak with a design consultant on the best facade for your floor plan.

Pricing Guides & Inclusions

Get your information packs