Cypress

Specifications

Description

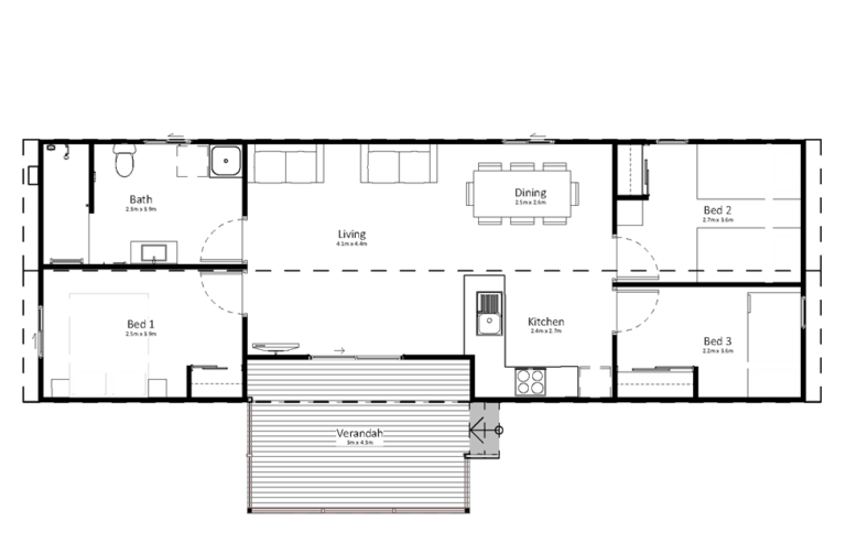
Maximise comfort and capacity with the Cypress – a unique single-module design that delivers three bedrooms and a central living area in one efficient layout.

Smart One-Module Design – Combines three bedrooms with a central living space, maximising the value of the footprint
Side Verandah – A sliding glass door leads to a verandah tucked along the cabin’s side, giving guests extra privacy away from the road.
Flexible Capacity – Sleeps 5 to 8 guests depending on configuration, with options for bunk beds in secondary bedrooms.
Spacious Bathroom – Large walk-in shower for easy maintenance, with laundry facilities conveniently incorporated.
Convenient Kitchen –  Practical L-shaped design delivers essential space for hassle-free meal preparation
Central Living & Dining – Thoughtful internal layout provides ample room for relaxation and shared meals.
Customisable Finishes & Layout – Select from a wide range of interior and exterior options, with layout adjustments available to suit your needs.
Hassle-Free Delivery – Our expert consultants handle council approvals and full installation
Built to Last – Quality construction for minimal maintenance, compliant with Queensland building regulations.

Talk to us about how Cypress can bring flexible, high-capacity accommodation to your site.

Images are for illustrative purposes only and may show optional upgrades.

Contact us for more information or to discuss your requirements.

Make it yours

Choose your facade

Speak with a design consultant on the best facade for your floor plan.

Pricing Guides & Inclusions

Get your information packs