Desert Rose

Specifications

Description

Upgrade your park with the Desert Rose – a versatile amenities unit that balances accessibility, compliance, and ease of operation.

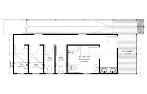
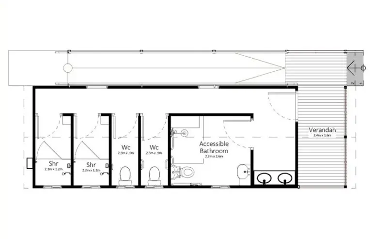
Multiple Private Facilities – Two showers, two toilets, plus a dedicated accessible bathroom, all connected by an internal hallway.
AS 1428.1 Compliant – Purpose-built for access and mobility, with ramp entry and clear circulation.
Enclosed for Privacy – Individual rooms provide guests with comfort and discretion.
Ambulant Option – One WC is designed for ambulant standards for additional accessibility.
Simple Operations – Single entrance makes seasonal closures and cleaning easy, with one main door to secure.
Unisex Design – Flexible setup to suit a wide range of guest needs.
Customisable Finishes – Tailor interiors and exteriors from a wide range of options to suit your park.
Expert Delivery – We handle council approvals, off-site construction and installation.
Built to Last – Durable, low-maintenance construction compliant with Queensland building regulations.

Give guests inclusive, hotel-style amenities—and enjoy a dependable unit that performs for years.

Images are for illustrative purposes only and may show optional upgrades.

Contact Us for more information or to discuss your requirements.

Make it yours

Choose your facade

Speak with a design consultant on the best facade for your floor plan.

Pricing Guides & Inclusions

Get your information packs