Frangipani

Specifications

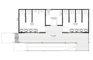
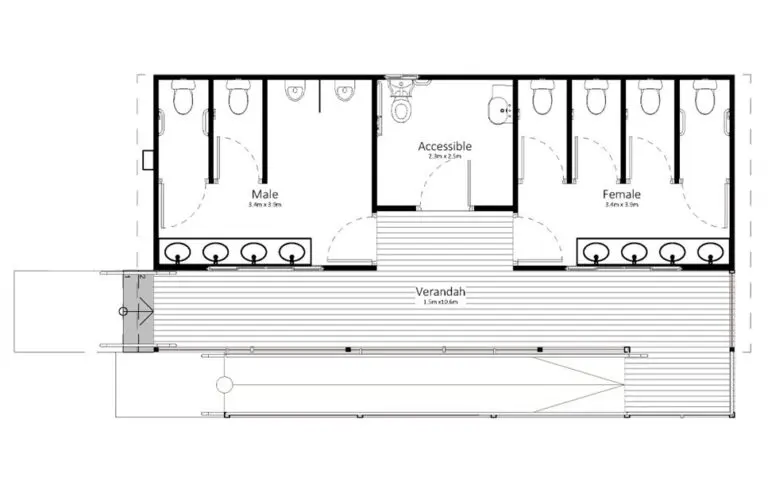
Description

Provide high-capacity, toilet facilities with Frangipani – a single-unit amenities block, purpose-built for busy parks and families.

Dedicated Male & Female Amenities – Separate sections with their own entries, each including ambulant provisions for added accessibility.
Multi-Access Verandah – Covered verandah with access from both ends, featuring an AS1428.1-compliant ramp at one end and steps at the other for convenient entry.
High-Flow Design – One basin per toilet ensures efficient use during peak times.
Male Facilities – Urinals incorporated
Covered Verandah – Designed for additional protection at entry points.
Customisable Finishes – Tailor interiors and exteriors from a wide range of options to match your park’s look.
Delivery – Our expert team manages council approvals, off-site construction and on-site installation.
Built to Last – Durable, low-maintenance construction compliant with Queensland building regulations.

Upgrade your guest experience with a family-ready amenities block that performs reliably for years.

Images are for illustrative purposes only and may show optional upgrades.

Contact Us for more information or to discuss your requirements.

Make it yours

Choose your facade

Speak with a design consultant on the best facade for your floor plan.

Pricing Guides & Inclusions

Get your information packs