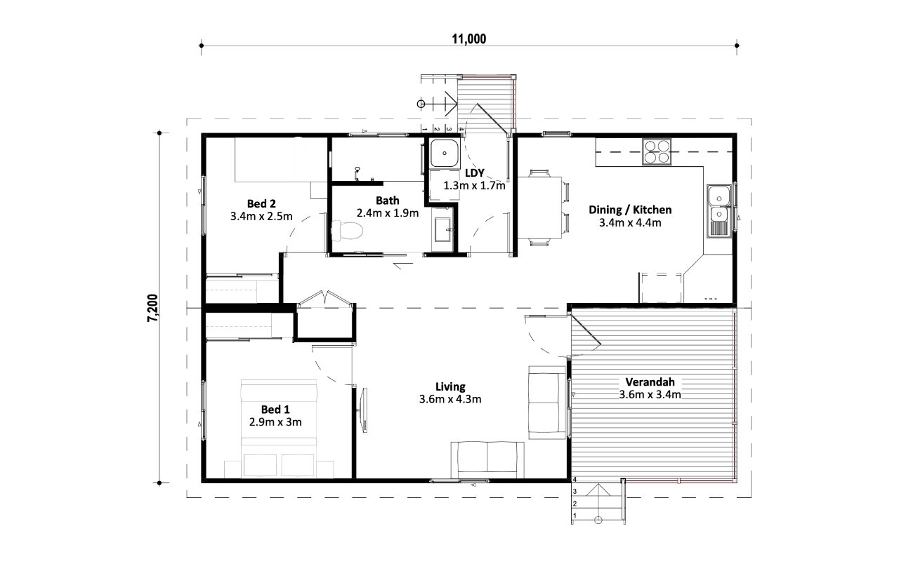
Hampshire

Specifications

Description

A generous two-bedroom home with everyday ease

Step in from the weather-protected verandah to a spacious living area that makes relaxing and entertaining effortless.

The well-appointed kitchen keeps cooking organised with a large corner pantry, window over the sink for outlook and light, and an under-bench oven to maximise bench space.

A laundry with external door helps keep mess contained, while hallway storage keeps everyday items neatly stowed.

Both bedrooms include built-in robes; Bedroom 2 suits a single bed – perfect as a study or guest room.

The bathroom’s walk-in shower offers easy access and low maintenance.

Designed for flexible living on compact sites or acreage – and, at 79.14 m², it can often suit use as a secondary dwelling (subject to local rules).

Images are for illustrative purposes only and may show optional upgrades.

Contact us for more information or to discuss your requirements.

Make it yours

Choose your facade

Speak with a design consultant on the best facade for your floor plan.

Pricing Guides & Inclusions

Get your information packs