Kennedia – Accessible

Specifications

Description

Offer a compact, comfortable stay that’s easy to navigate—ideal for guests who value simplicity and accessibility.

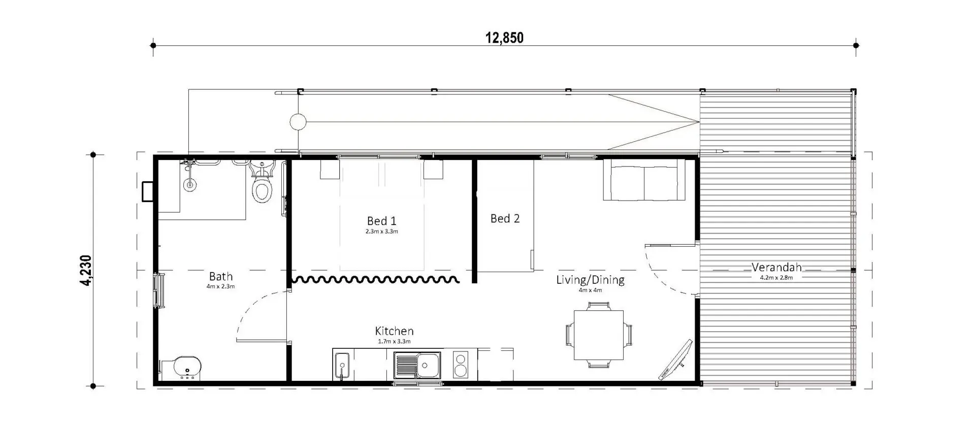
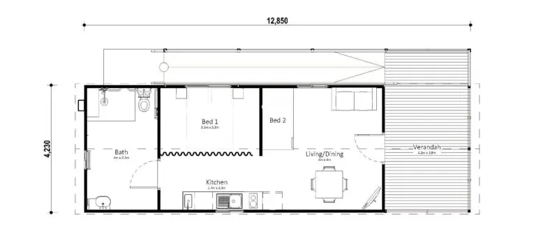
Accessibility-Led Layout – Clear, open circulation makes moving between verandah, living, sleeping, and bathroom areas effortless and aligned with AS1428.1 compliance requirements.
Dual Sleeping Zones – Queen bed enclosed with a privacy curtain for added privacy, plus a single bed in the living area to accommodate an additional guest.
Accessible Bathroom – Compliant layout with convenient shower, toilet, and basin designed for ease of use.
Customisable Finishes – Personalise interiors and exteriors from a wide range of options to suit your style.
Flexible Modifications – We can tailor the Kennedia Accessible to your exact requirements.
Hassle-Free Delivery – Our expert consultants handle council approvals and full installation.

Images are for illustrative purposes only and may show optional upgrades.

Contact us for more information or to discuss your requirements.

Make it yours

Choose your facade

Speak with a design consultant on the best facade for your floor plan.

Pricing Guides & Inclusions

Get your information packs