Kennedia

Specifications

Description

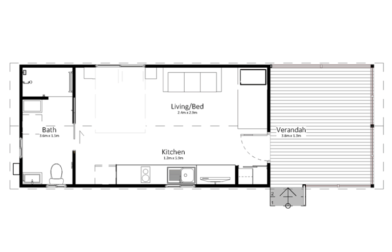
Refresh your accommodation offering with the Kennedia cabin – a compact, open-plan design crafted for guests who value simplicity without sacrificing comfort.

Flexible Living & Sleeping – Open-plan layout accommodates for a queen bed, sofa and the option to accommodate an extra guest in a single bed.
Combined Bathroom & Laundry – Walk-in shower and built-in laundry maximise self-contained functionality and practical maintenance.
Customisable Finishes – Choose from our extensive range of interior and exterior options to reflect your park’s unique style.
Built-In Storage – Dedicated wardrobe storage, alongside kitchenette storage. 
Flexible Modifications – Asset Cabins & Homes can tailor the Kennedia design to your exact specifications.
Seamless Delivery – Our expert team, manages compliance and installation for you.

Images are for illustrative purposes only and may show optional upgrades.

Contact us for more information or to discuss your requirements.

Make it yours

Choose your facade

Speak with a design consultant on the best facade for your floor plan.

Pricing Guides & Inclusions

Get your information packs