

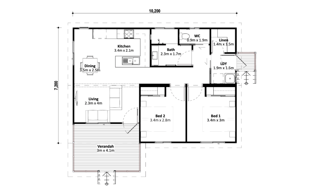
Two queen-sized bedrooms, thoughtful storage, effortless flow
Arrive under the entrance verandah and step into a functional living and dining area.
Both bedrooms fit queen beds for genuine guest comfort.
The kitchen adds everyday efficiency with generous overhead storage, under-bench oven, breakfast bar with corner access storage, and an easy-reach microwave space within the double door pantry.
The separate toilet improves convenience, while the laundry includes a sizeable walk-in linen cupboard and external door for convenient access.
With a well-protected front entry and a walk-in shower for low-fuss cleaning, Kent balances comfort and functionality.
Contact us for more information or to discuss your requirements.
[gravityform id=”5″]
[gravityform id=”4″]
[gravityform id=”3″]
[gravityform id=”2″]
[gravityform id=”1″]