Lacebark

Specifications

Description

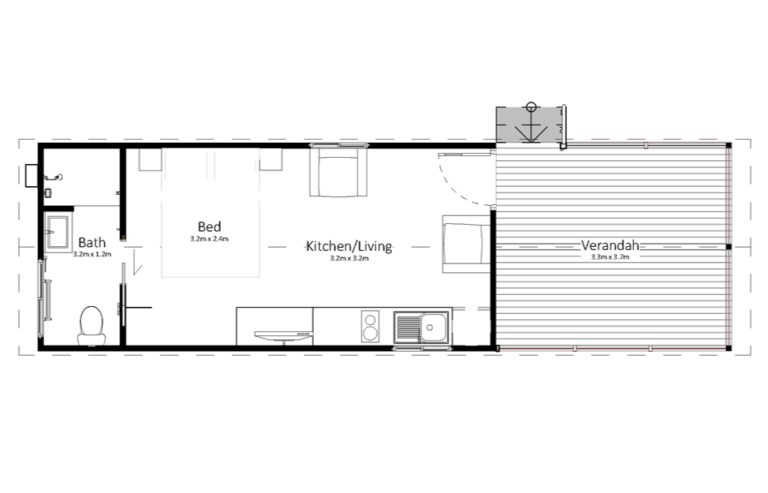
Discover the Lacebark cabin: a one-bedroom, open-plan design with an ensuite – an ideal solution for worker or staff accommodation.

Private Ensuite – Enjoy a dedicated shower, toilet, and basin for complete comfort and convenience.
Open-Plan Layout – Living, dining and sleeping zones flow together to maximize usabilty within a streamlined footprint.
Practical and Versatile – Suited to worker accommodation and short-term accommodation. 
Customisable Finishes – Tailor your cabin’s interior and exterior from our extensive range of premium options.
Seamless Delivery – Our expert team, manages compliance and installation for you.

Images are for illustrative purposes only and may show optional upgrades.

Contact us for more information or to discuss your requirements.

Make it yours

Choose your facade

Speak with a design consultant on the best facade for your floor plan.

Pricing Guides & Inclusions

Get your information packs