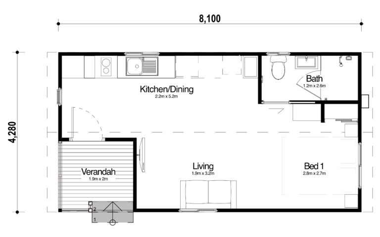
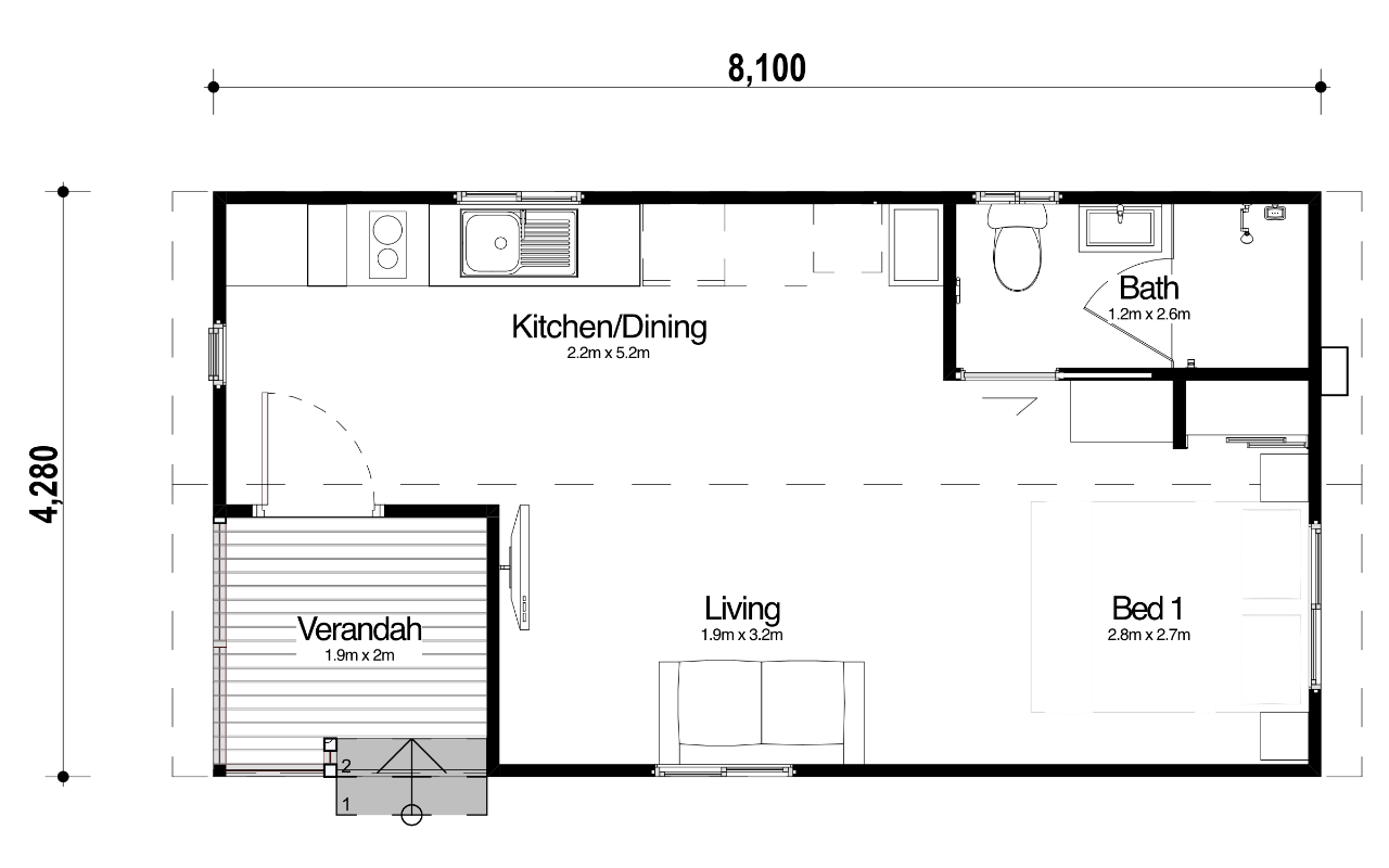
Maple

Specifications

Description

Elevate your park’s accommodation with an open-plan cabin designed for singles or couples seeking simplicity and style.

Open-Plan Efficiency – Thoughtfully laid out kitchen, laundry, living and sleeping areas maximize usable space.
Integrated Laundry – Conveniently positioned within the kitchen for practical, space-saving functionality.
Built-In Storage – Convenient luggage storage in the bedroom ensures guests enjoy a tidy, practical stay.
Space-Efficient Bathroom – Self-contained shower, toilet and basin in a streamlined, convenient layout.
Customisable Finish Options – Personalise your cabin with a vast selection of interior and exterior features.
Expert Delivery – Our experienced team, manages compliance and installation for you.

Images are for illustrative purposes only and may show optional upgrades.

Contact us for more information or to discuss your requirements.

Make it yours

Choose your facade

Speak with a design consultant on the best facade for your floor plan.

Pricing Guides & Inclusions

Get your information packs