Newton

Specifications

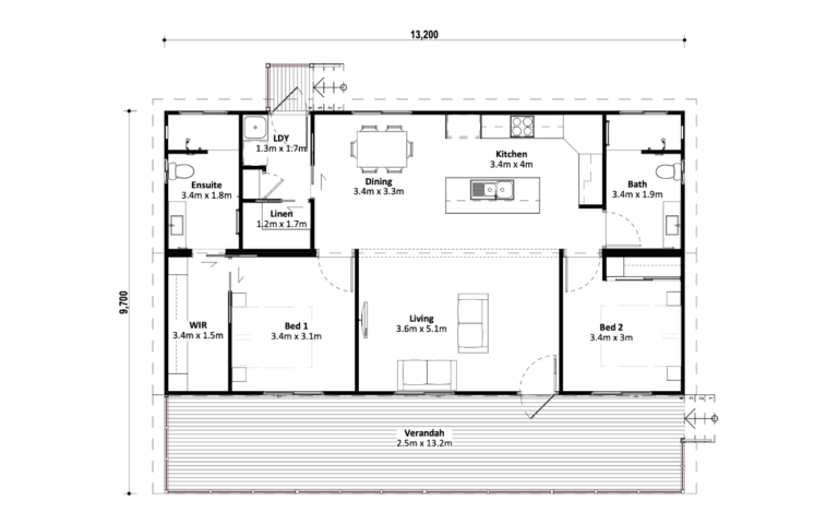
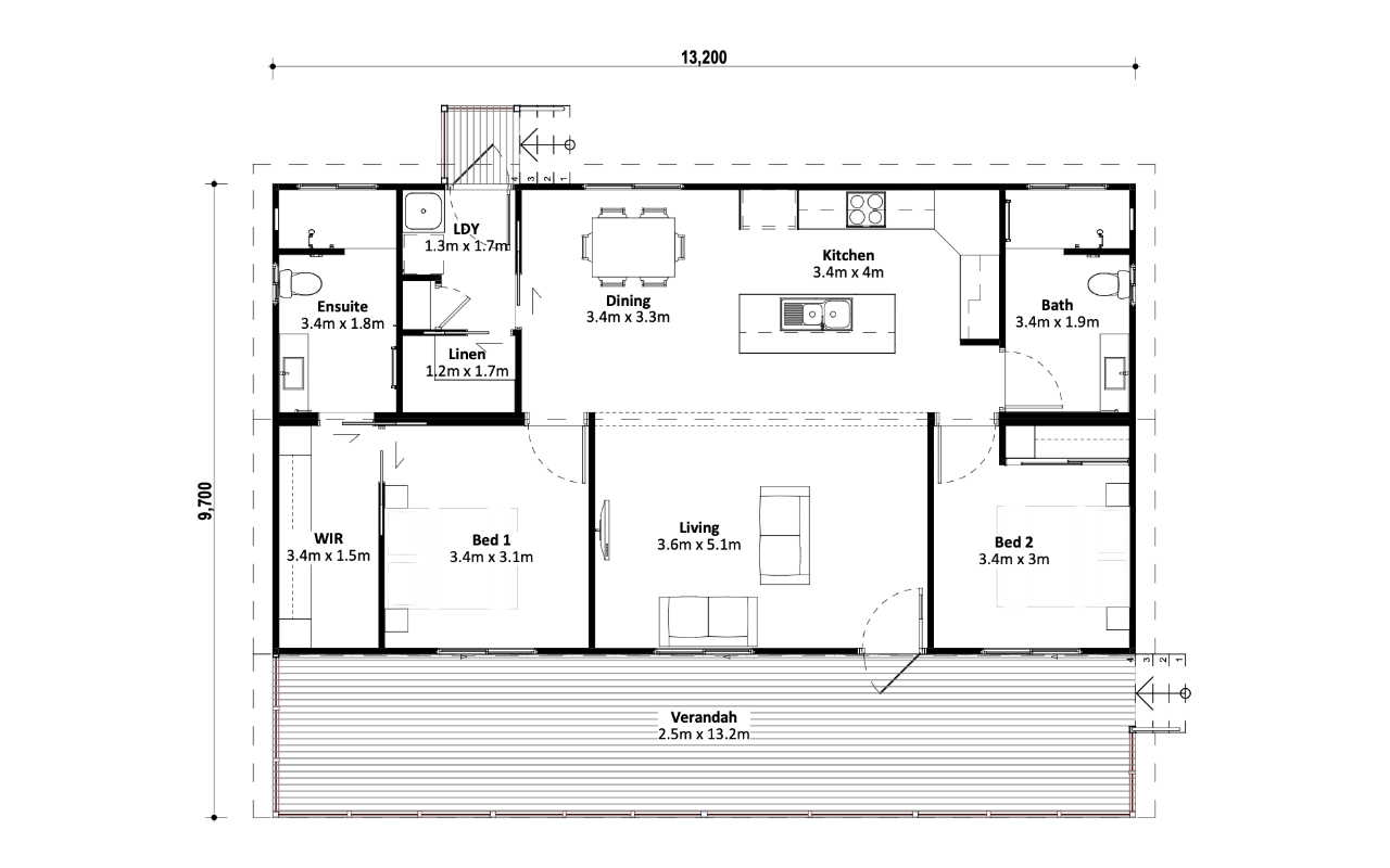
Description

A private main-suite retreat, and full second bathroom

Newton is a favourite two-bedroom, two-bathroom layout, with a true main-suite: walk-in robe tucked behind the bed and an ensuite with a low-maintenance walk-in shower.

A full-width front verandah sets a relaxed tone, while the living area sits at the heart of the home.

The kitchen includes a breakfast bar and sizeable corner pantry; an under-bench oven maximises bench space.

The laundry provides a closable walk-in linen and rear access for practical everyday living.

Both bedrooms fit queen beds, with robes for practical storage.

Images are for illustrative purposes only and may show optional upgrades..

Contact us for more information or to discuss your requirements.

Make it yours

Choose your facade

Speak with a design consultant on the best facade for your floor plan.

Pricing Guides & Inclusions

Get your information packs