Norfolk

Specifications

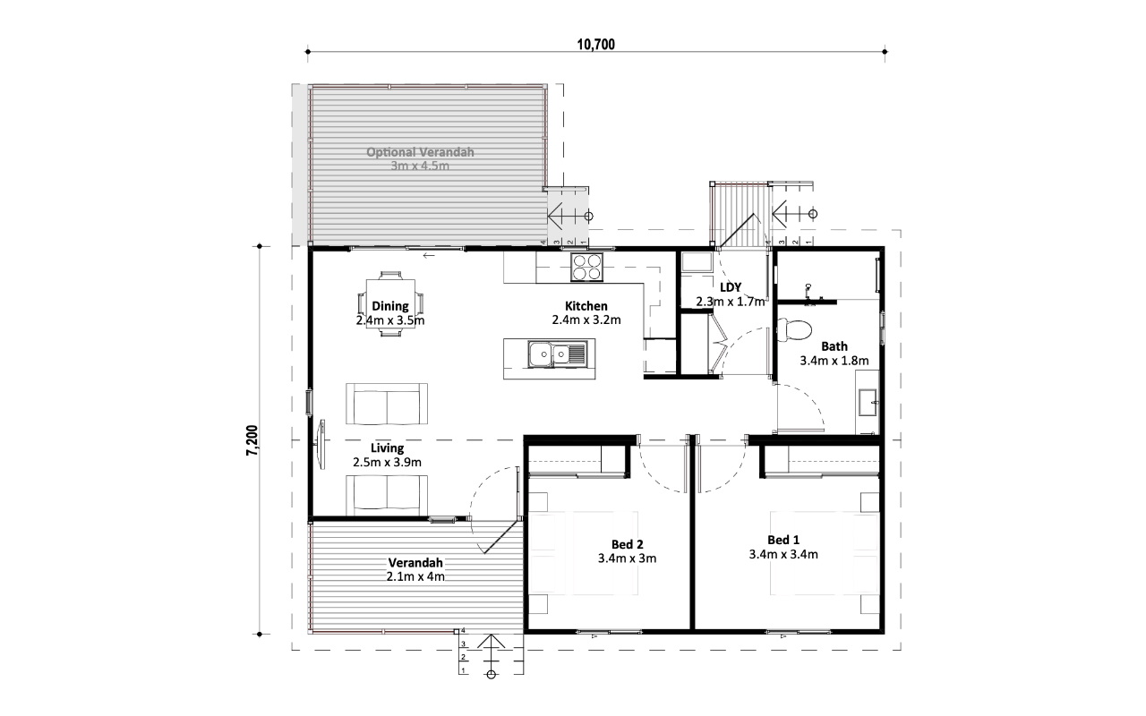
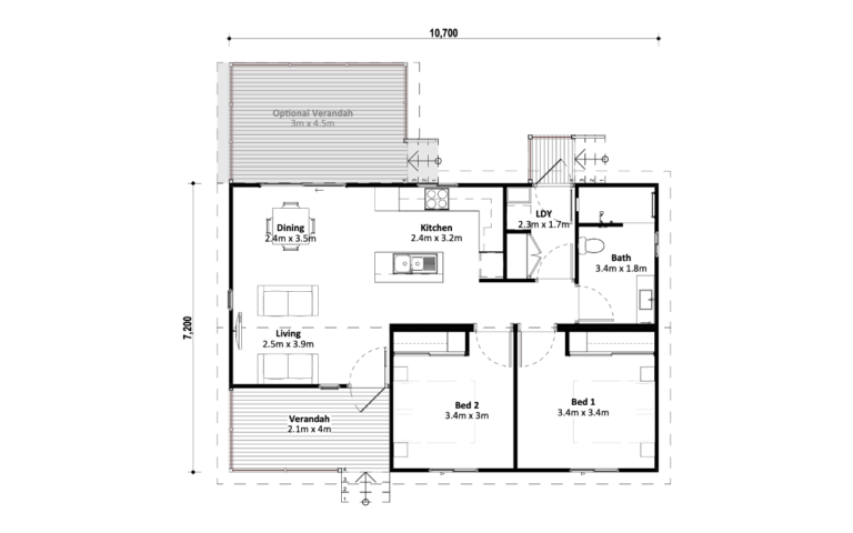
Description

Welcoming entrance, with potential to extend outdoor living

A wider frontage, complimented by an inset verandah creates impressive street presence.

The L-shaped kitchen with central island encourages easy flow, supported by a full-height double-door pantry, under bench oven for extra bench space and a splashback window for extra light.

Both bedrooms fit queen beds and include generous robes.

The bathroom’s walk-in shower offers easy maintenance; the laundry adds linen storage for everyday order.

Add the optional rear verandah off the dining to extend living outdoors with privacy at the back – great for entertaining or quiet retreats.

Images are for illustrative purposes only and may show optional upgrades.

Contact us for more information or to discuss your requirements.

Make it yours

Choose your facade

Speak with a design consultant on the best facade for your floor plan.

Pricing Guides & Inclusions

Get your information packs