Oregon 430

Specifications

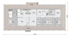
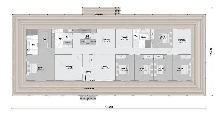
Description

The Oregon 430 captures the classic features of an Australian ranch with large open spaces, high internal ceilings and a full wrap around verandah for the ideal country lifestyle.
Enter a dedicated entryway, where you can express your personal style, leave your boots and greet your guests.
The heart of the home is dedicated to family and living areas. Enjoy cooking, dining and entertaining as a family in the open plan kitchen and dining, seamlessly integrated to the outdoor verandah for the perfect social environment. The well-planned kitchen is complimented with a walk in pantry, with direct access to the dining and verandah you can see and serve guests as you entertain.

The wraparound verandah offers multiple view points, and the luxury to choose where you sip your morning ‘cuppa’.
A full sized main suite offers you privacy and enhances your relaxation with a large ensuite and walk in robe to ease your getting ready routine. Generous room sizes and robes for each family member, with access to a bathroom and water closet for maximum privacy. Flexible layout to suit your lifestyle with multi use rumpus and study areas depending on your requirements. Two entrances to the laundry gives you the best of both worlds, with easy access to the backyard and linen cupboard, it allows great air flow throughout the home for comfortable internal temperatures.

If your family loves a home that’s fully connected to the outdoors – the Oregon 430 is for you.

Make it yours

Choose your facade

Speak with a design consultant on the best facade for your floor plan.

Pricing Guides & Inclusions

Get your information packs