Oxford

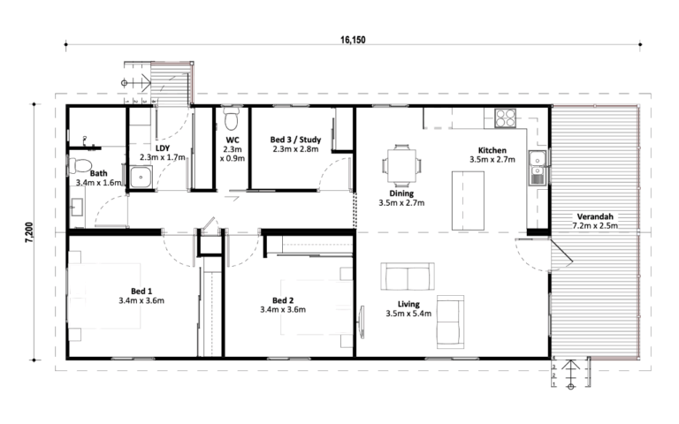
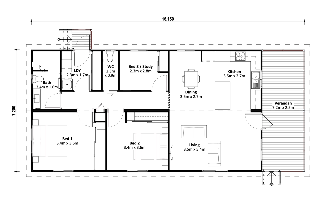
Specifications

Description

Space smart three-bedroom design

Oxford delivers three bedrooms in a streamlined footprint without sacrificing comfort.

An inviting verandah spans the front – perfect for a relaxing welcome.

The open kitchen flows with a breakfast bar, sink below the window, double-door pantry and under-bench oven to keep prep space clear.

Bedroom 3 offers the option of accommodating a single bed or becoming a study or hobby room.

Enjoy a main bathroom with walk-in shower plus a separate toilet for convenience.

Laundry storage runs full length behind sliding doors, with extra hallway storage for linen and essentials, and handy external access from the laundry.

Both bedrooms offer generously sized built in robes.

Images are for illustrative purposes only and may show optional upgrades.

Contact us for more information or to discuss your requirements.

Make it yours

Choose your facade

Speak with a design consultant on the best facade for your floor plan.

Pricing Guides & Inclusions

Get your information packs