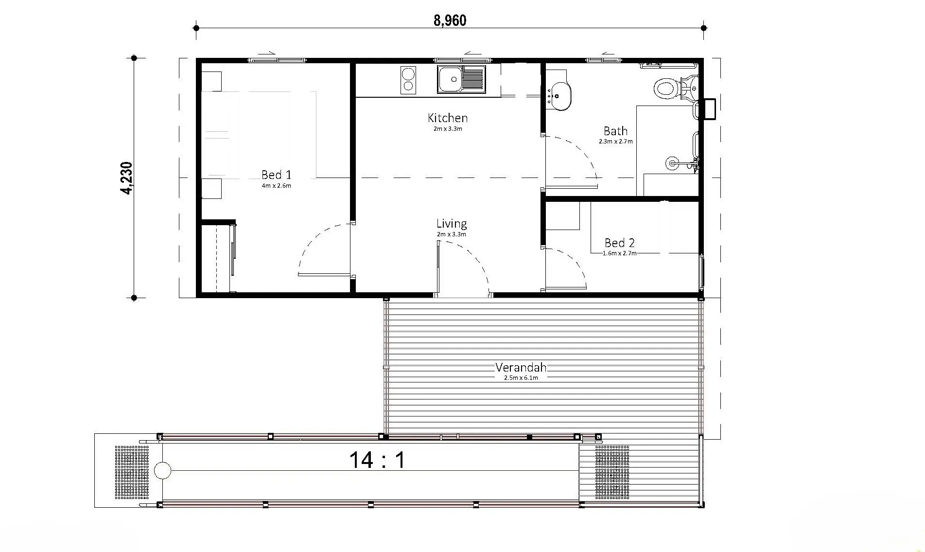
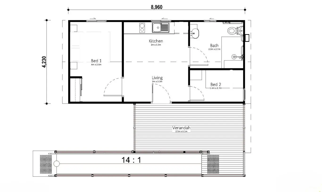
Terang Accessible

Specifications

Description

Give families space to thrive with a wheelchair-friendly, two-bedroom modular cabin – designed for comfort, practicality, and easy access.

Accessibility – Wheelchair access via ramp and clear, open circulation throughout, as per AS1428.1 requirements.
Functional Layout – The master bedroom is focussed on accessiblity, with the second bedroom designed for a single bed or single bunk beds.
Verandah Living – External living space extends the cabin footprint, creating a hub for relaxing and dining.
Customisable Finishes – Tailor interiors and exteriors from our wide range of options.
Flexible Modifications – We’ll adjust the plan to suit your site and specific requirements.
Hassle-Free Delivery – Our expert team manages council approvals and full installation.
Built to Last – High-quality construction with minimal maintenance, compliant with Queensland building regulations.

Create accessible, family-friendly accommodation that’s easy to deliver and made to perform for years.

Images are for illustrative purposes only and may show optional upgrades.

Contact us for more information or to discuss your requirements.

Make it yours

Choose your facade

Speak with a design consultant on the best facade for your floor plan.

Pricing Guides & Inclusions

Get your information packs