Terang

Specifications

Description

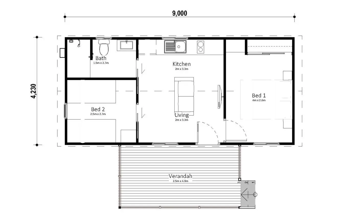
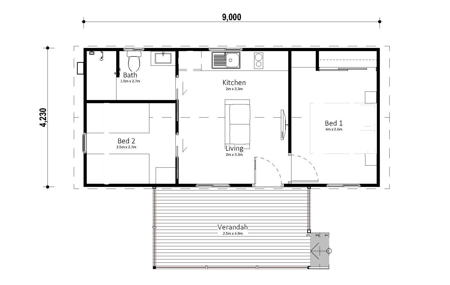
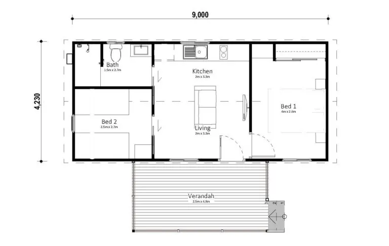
Welcome guests with Terang – a two-bedroom modular cabin designed for short-term family accommodation.

Practical Layout – Comfortable two-bedroom design ideal for families with up to four children, where bunks are provided.
Central Living – Open-plan living area opens on to the verandah, and features a kitchenette with fridge space and stove top.
Guest Convenience – Main bedroom incorporates a robe and luggage rack, making settling in easier.
Easy-care Bathroom – Walk-in screenless shower, with back-to-wall toilet and vanity – all designed for low maintenance
Customisable Finishes – Make it yours with a wide range of interior and exterior options.
Flexible Modifications – We can tailor the floor plan and inclusions to suit your site and guests.
Hassle-Free Delivery – Our expert team manages council approvals and full installation.
Built to Last – High-quality construction, low-maintenance materials, and compliance with Queensland building regulations.

Create a durable, family-friendly cabin that’s ready to perform for years—tailored to your exact requirements.

Images are for illustrative purposes only and may show optional upgrades.

Contact us for more information or to discuss your requirements.

Make it yours

Choose your facade

Speak with a design consultant on the best facade for your floor plan.

Pricing Guides & Inclusions

Get your information packs