Waratah

Specifications

Description

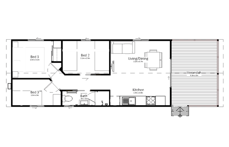
Add flexible, family-ready accommodation with Waratah – a versatile three-bedroom modular cabin that adapts to changing guest numbers with ease.

Flexible Bedroom 2 – Can be fitted with bunks to increase sleeping capacity.
Great for Families & Groups – Three separate bedrooms to suit large families and mixed groups.
Space & Transport-Efficient Design – Acheives three-bedroom capacity within an optimised footprint, and ensures streamlined delivery.
Functional Kitchenette – Provides a practical area for easy meal preparation.
Indoor–Outdoor Connection – Sliding glass door links the living area to the verandah, extending usable space.
Customisable Finishes – Match your site’s aesthetic with a wide range of interior and exterior options.
Tailored Modifications – We can adjust the plan and inclusions to suit your requirements.
Hassle-Free Delivery – Our experts handle council approvals and full installation.
Built to Last – Quality construction, low maintenance, and compliance with Queensland building regulations.

Create dependable, high-capacity accommodation that’s easy to deliver and ready to perform for years.

Images are for illustrative purposes only and may show optional upgrades.

Contact us for more information or to discuss your requirements.

Make it yours

Choose your facade

Speak with a design consultant on the best facade for your floor plan.

Pricing Guides & Inclusions

Get your information packs