Wattle Accessible

Specifications

Description

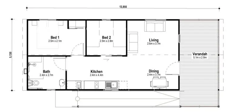
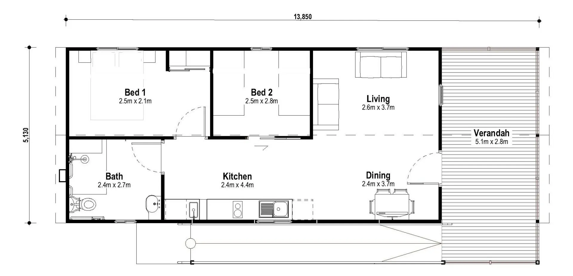
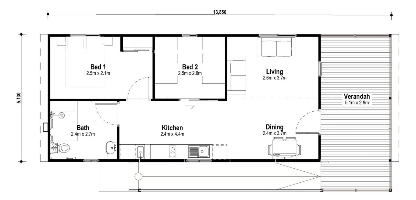
Deliver an easy stay with the Wattle Accessible design cabin – a spacious two-bedroom modular cabin designed for effortless movement and relaxation.

Access-Friendly Layout – Open design with clear circulation between living, dining, kitchen, and bedrooms, fully compliant with AS1428.1 accessibility standards.
Family-Friendly Capacity – Accommodates four to six guests, with Bedroom 2 suitable for bunk beds.
Convenient Bedroom Storage – Built-in robe in Bedroom 1 keeps belongings organised during longer stays.
Relaxing Verandah – Full-width outdoor area connected to the living space, extending the lifestyle space
Cohesive Design – Easily adapted to be consistent in style with other cabins
Optimises Site Space – Efficiently integrates accessible features within a streamlined layout.
Integrated Laundry – Intentionally built into the kitchenette for a complete all-in-one cabin offering
Customisable Finishes – Personalise interiors and exteriors from our wide range of options.
Hassle-Free Installation – Our expert team manages council approvals and installation
Built to Last – High-quality construction with low maintenance, compliant with Queensland building regulations.

Create a welcoming, accessible retreat where every guest can truly relax – built for comfort today and performance for years to come.

Images are for illustrative purposes only and may show optional upgrades.

Contact us for more information or to discuss your requirements.

Make it yours

Choose your facade

Speak with a design consultant on the best facade for your floor plan.

Pricing Guides & Inclusions

Get your information packs