Wattle

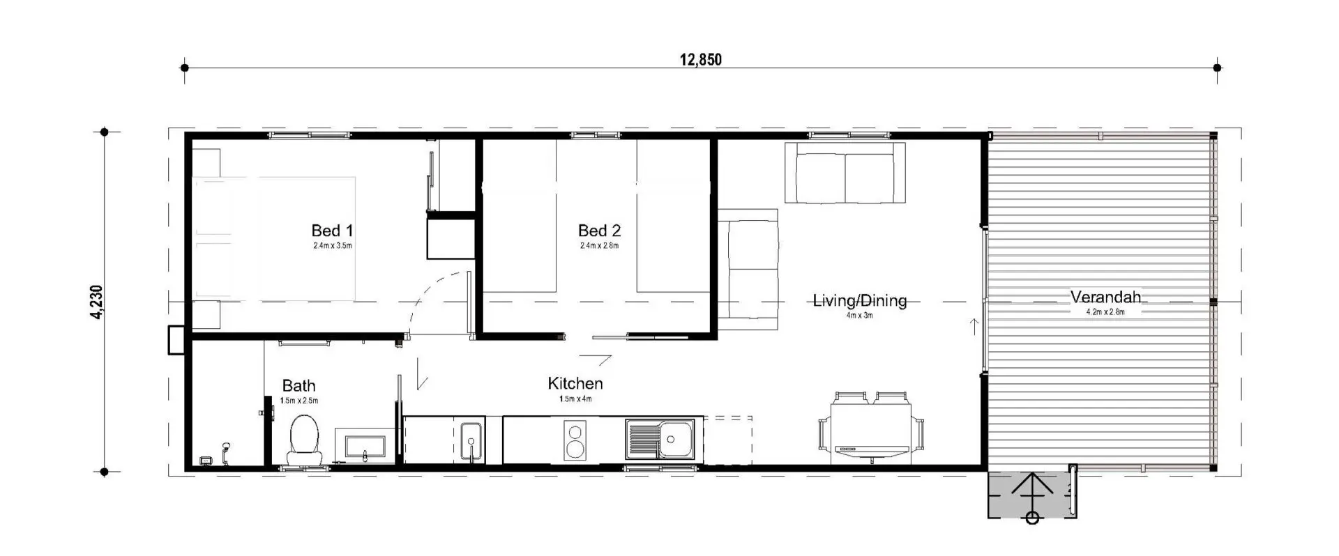
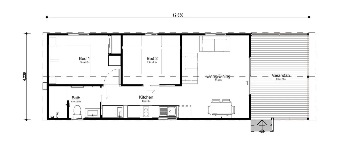
Specifications

Description

Create a calm, resort-style stay with Wattle – a spacious two-bedroom modular cabin designed for rest, recovery and creating memories.

Popular Choice – Comfortable design that accommodates four to six guests with ease.
Maximises Park Value – Narrow frontage makes the most of limited road space, helping fit more cabins within your site
Efficient Design – Hallway layout is optimised to include a laundry and kitchenette, ensuring every zone is put to use.
Indoor – Outdoor Living – Verandah connects to the internal spaces via a sliding glass door, expanding the living area.
Low-Maintenance Bathroom – Walk-in shower, toilet and vanity design for durability and easy cleaning.
Customisable Finishes – Tailor interiors and exteriors from a wide range of premium options.
Hassle-Free Delivery – We handle council approvals and full installation.
Built to Last – High-quality construction with low-maintenance materials, compliant with Queensland building regulations.

Give your guests the space to enjoy family time in comfort, with a cabin that’s durable, beautiful, and easy to deliver.

Images are for illustrative purposes only and may show optional upgrades.

Contact us for more information or to discuss your requirements.

Make it yours

Choose your facade

Speak with a design consultant on the best facade for your floor plan.

Pricing Guides & Inclusions

Get your information packs