

A Cleverly Designed Two-Bedroom Sanctuary
Enjoy the freedom of connected living with The Wiltshire, a versatile two-bedroom secondary dwelling designed for comfort, practicality, and ease.
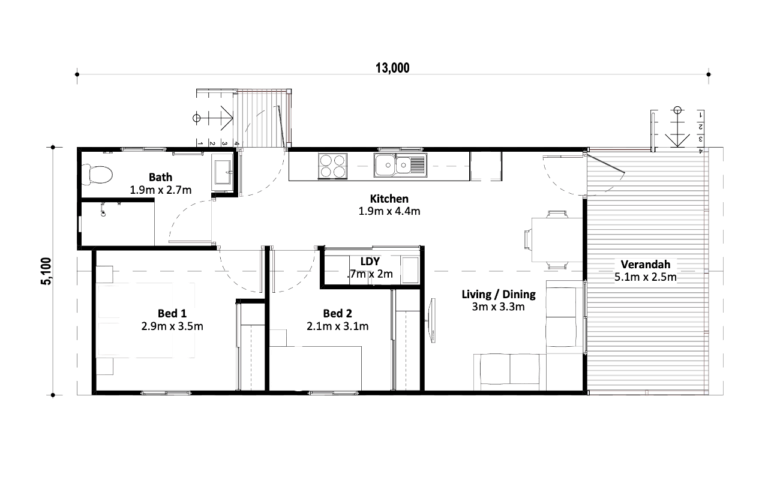
Step inside from the spacious verandah and discover a thoughtfully planned layout.
The kitchen runs neatly along the hallway, making the most of the space provided, while a built-in laundry cupboard opposite provides everyday convenience.
The main bedroom is designed to suit a Queen bed, while the second bedroom is ideal for a single bed, study, or creative space – easily adapted to your lifestyle needs.
A modern walk-in shower in the bathroom offers easy access and low maintenance.
Rear access through a back door and landing provides additional functionality, making daily living simple and effortless.
Expertly built and seamlessly delivered, you can trust in craftsmanship made to last for generations.
Contact us for more information or to discuss your requirements.
[gravityform id=”5″]
[gravityform id=”4″]
[gravityform id=”3″]
[gravityform id=”2″]
[gravityform id=”1″]