Dakota 202

Specifications

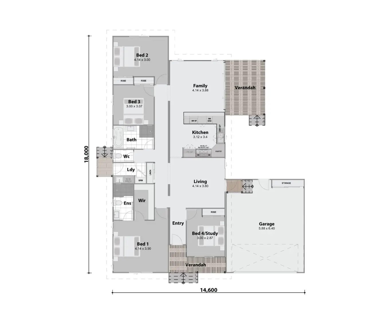
Description

The Dakota 202 is the ideal home for raising a small family, with the perfect balance of functionality and lifestyle living.

Clean lines, mix claddings and spectacular rooflines achieves that modern appeal. A cozy verandah entrance enters the main living flowing through to family areas and sleeping wings.

Emphasis on indoor to outdoor integration is great for those who love to entertain and bring the outside in. Create fondest family moments in kitchen, complimented with the breakfast bar for serving family meals on the go. Internal access from the garage saves you hauling the groceries, and keeps you dry on those rainy days. Attend to washing piles in the laundry, direct access to the outdoors shortens your trip to the clothesline and allows airflow throughout the home.

Stay organized when life gets busy with ample storage provisions throughout the home. Needing time alone? The full size master suite is designed to enhance your relaxation, fitted with an ensuite and walk in robe. The Dakota 202 has well designed spaces for maximum use, accommodating your needs for a lifetime.

 

Make it yours

Choose your facade

Speak with a design consultant on the best facade for your floor plan.

Pricing Guides & Inclusions

Get your information packs